[ PROYECTOS ]

Autopista Troncal Magdalena

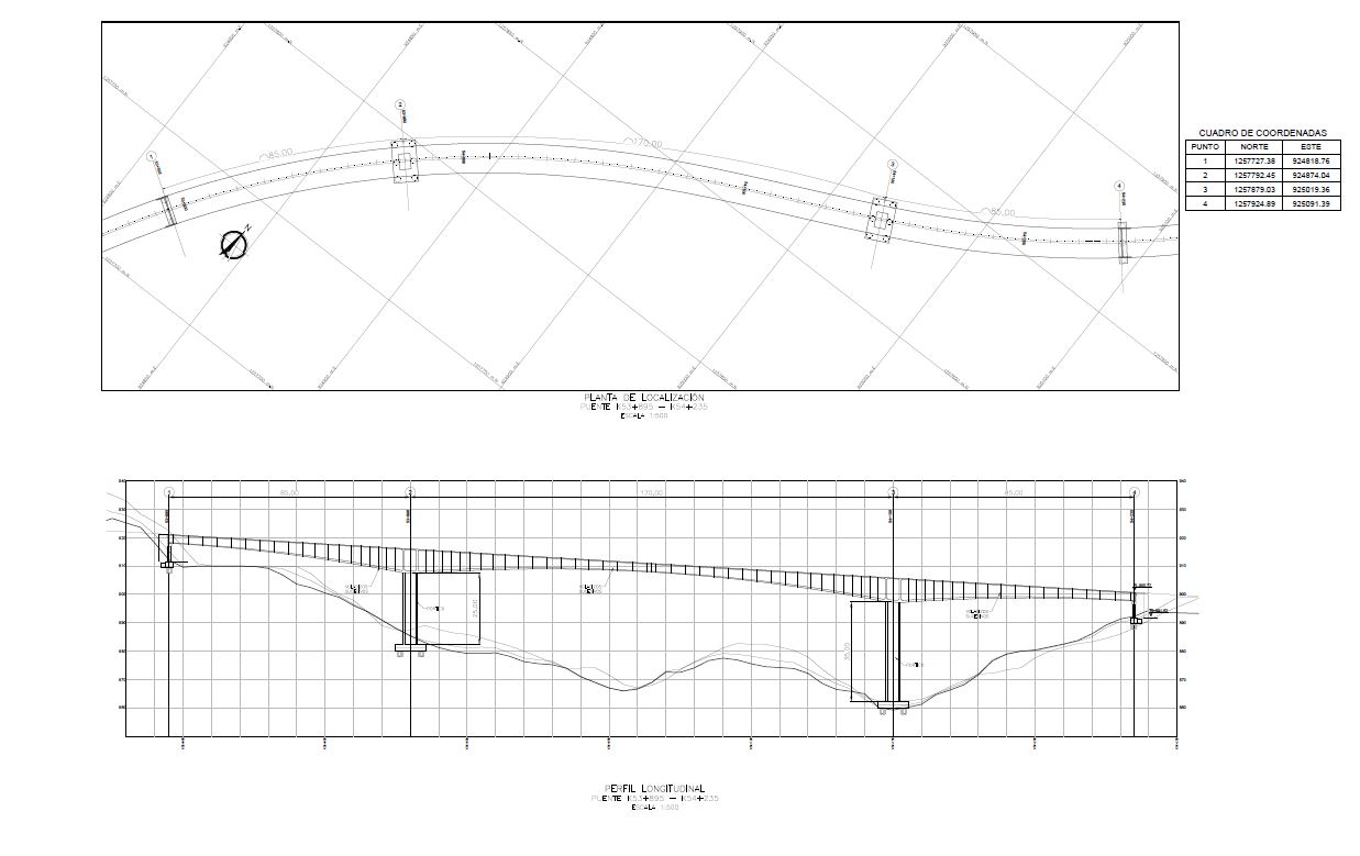
MOMENTO INGENIERÍA Participó activamente en la ejecución del proyecto desde la etapa de prefactibilidad hasta la etapa de diseños detallados, aportando la experticia y el conocimiento técnico en la elaboración de los puentes en voladizo sucesivo de las unidades funcionales 1 y 3.

Estos puentes de grandes luces, hacen parte de la nueva calzada del corredor autopista río Magdalena, la cual cuenta con retos a nivel geológico-topográfico bastante importantes.

Cliente
INGES Consultoría y diseño
Propiedad
ANI
TIPOLOGÍA
Puentes en voladizos sucesivos.
×